Úprava šaten a fotbalového zázemí
Obec Bašť připravuje modernizaci stávajícího fotbalového zázemí, jehož cílem je vytvořit kvalitní a funkční prostředí pro sportovce, návštěvníky i širší veřejnost. Projekt zahrnuje kompletní rekonstrukci šaten, výstavbu nového společenského prostoru a celkové zkulturnění areálu sportoviště.
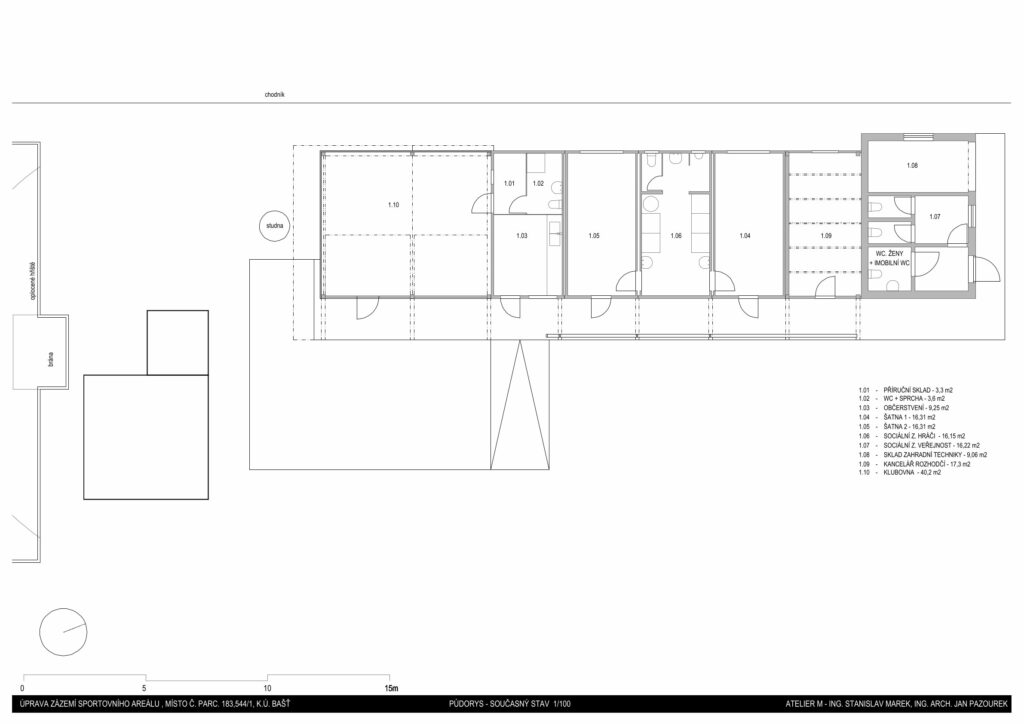
Stavební úpravy stávajícího objektu
- Šatna rozhodčího
Do prostoru stávající šatny bude nově začleněno hygienické zázemí – koupelna s WC. Celý prostor včetně podlah a stropu bude dodatečně zateplen a osazen novým oknem. - Občerstvení
Z důvodu nedostatečné kapacity bude prostor občerstvení rozšířen. Nově bude vybaven také umyvadlem pro základní hygienu. - Klubovna
Prostor klubovny projde celkovou tepelnou izolací. Fasáda směrem ke sportovišti bude nahrazena prosklenými posuvnými stěnami. Z jižní strany vznikne nový vstup do klubovny pro lepší propojení s areálem. - Markýza / Krytá terasa
Před klubovnou bude instalována elektricky ovládaná výsuvná markýza, která vytvoří kryté posezení – společenský prostor pro sportovce i návštěvníky.
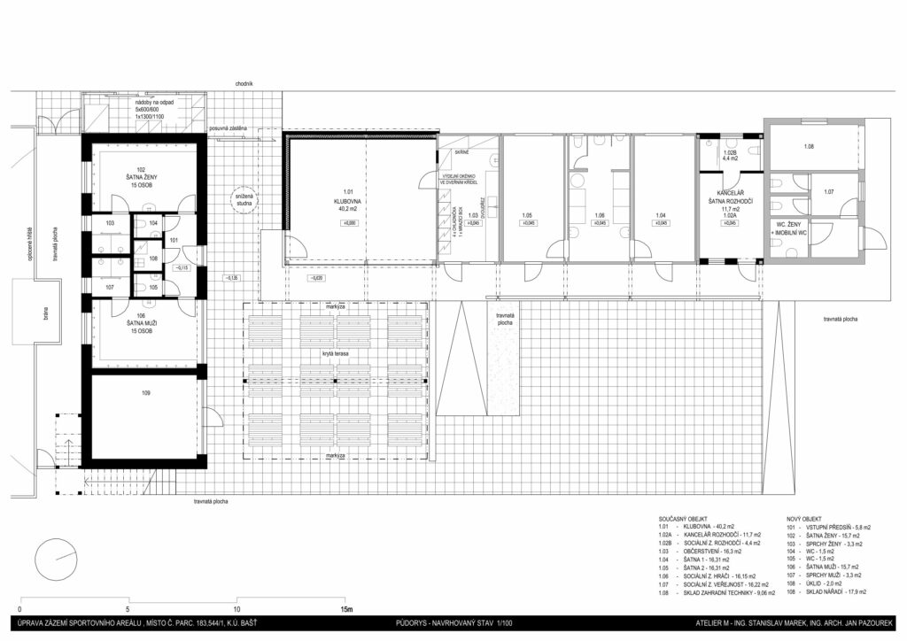
Dostavba nového sportovního zázemí
- Výstavba nové jednopodlažní zděné budovy kolmo ke stávajícímu objektu. Budova bude mít plochou střechu a sloužit jako sportovní zázemí:
- 2 nové šatny
- Hygienické zázemí, včetně sprch a 2 toalet
- Sklad pro sportovní vybavení
- Součástí dostavby je také technický sklad pro komunální a tříděný odpad, napojený na obslužnou komunikaci.
- Nová budova bude propojena se stávajícím objektem posuvným oplocením, které zároveň vytvoří optické oddělení od zásobovací cesty.
- Na střeše nové budovy vznikne veřejně přístupná vyhlídková terasa (přístupná pouze při vybraných akcích) a část střechy bude řešena jako nepřístupná zelená střecha s vegetací.
Retenční nádrže
- Dešťové vody ze střech obou objektů budou sváděny do retenčních nádrží.
- Voda bude sloužit k závlaze travnatého hřiště (samostatný projekt)
- Přepad z nádrží bude napojen na drenážní systém pro vsakování vody.
Automatická závlaha hřiště
V návaznosti na odevzdání projektu na nové kabiny a rekonstrukci stávajících bylo zadáno vypracování umělé závlahy fotbalového hřiště tak,
aby v budoucnu nezkomplikovalo výstavbu a modernizaci zázemí areálu.
Projekt předpokládá využití dešťové vody z budov na závlahu samotného hřiště. Dnes tato voda není nikde zachytávána. Odhadovaný rozpočet je necelý 1mil korun.
Zpevněné plochy a přístupy
- Dojde k rozšíření zpevněných ploch kolem sportovního areálu dle požadavků obce.
- Vybudována bude nová přístupová cesta z veřejné komunikace a rozšířené prostranství před objektem včetně přístupové rampy.
- Tyto plochy poslouží nejen pro běžný provoz sportoviště, ale i pro společenské a kulturní akce obce.
- Součástí úprav je bezbariérový přístup do všech důležitých prostor.
- Bude také upravena stávající studna na úroveň nové dlažby.
Přínos pro obec a komunitu
Tato investice přinese dlouhodobé zlepšení sportovní infrastruktury v obci Bašť. Zmodernizované zázemí bude sloužit nejen místnímu fotbalovému klubu a mládeži, ale také široké veřejnosti při sportovních a společenských akcích. Projekt podporuje aktivní trávení volného času, mezigenerační setkávání a posílení komunitního života v obci.
Předpokládaný začátek realizace: bude se odvíjet od získání pravomocného stavebního povolení
Zdroje financování: Národní sportovní agentura (dotace), Obec Bašť
Celková zastavěná plocha objektu dostavby areálu: 111,7 m2
Nejvyšší výška objektu dostavby: 3,3 bmObestavěný prostor objektu dostavby : 330,0 m3
CELKOVÁ CENA STAVBY ( bez automatické závlahy hřiště) včetně DPH, VRN: 14. 495 000,- Kč
Adresa: ul. Hlavní, parc.č. st. 183, 544/1 k.ú. Bašť
Investor : Obec Bašť
Projektant: ATELIER – M, Ing. Stanislav Marek
autor. Inženýr pro pozemní stavby č.autor. 0000223
Ing. arch. J. Pazourek
Historie vývoje sportovního areálu v Bašti
Moderní víceúčelové hřiště
V roce 2020 bylo víceúčelové hřiště rekonstruováno a hlavně rozšířeno na standardní rozměr 36 m x 17 m. Tato velikost hřiště již umožňuje skutečně jeho víceúčelovost – fotbal, volejbal, nohejbal, basketbal, tenis.
Branky jsou integrovány do oplocení a odpadla tak nutnost branky jakkoli stěhovat a upevňovat. Instalováno bylo také LED osvětlení, které prodlužuje dobu využitelnosti hřiště.
Od ledna 2021 bude také spuštěn unikátní rezervační systém, který umožňují nejen samotné rezervace, ale také platby a současně bude sloužit jako elektronický vrátný. Se zaplacenou rezervací obdržíte také kód pro otevření branky.
Ceník:
Plány pro rozšíření sportoviště:
Obec požádala o dotaci na vybudování parkourového a street workoutového hřiště o rozloze 275 m čtverečných. Na této ploše bude umístěno 50 jednotlivých prvků.
Pokud bude dotace ze strany Ministerstva pro místní rozvoj schválena, bude výstavba probíhat v období 4/2021 – 8/2021.
Historie:
V roce 2007 a 2008 byly pokáceny staré, zdraví a majetky ohrožující, topoly a nahrazeny výsadbou nových 12 platanů. V roce 2007 se podařilo díky dotaci Ministerstva pro místní rozvoj vybudovat nové víceúčelové hřiště s umělým povrchem, v jehož blízkosti vyrostla i dětská horolezecká stěna. V roce 2009 se podařilo navázat výstavbou nového sociálního zařízení z obdržené dotace středočeského fondu Sportu a volného času a rok 2011 přinesl opět dotaci z MMR, díky níž bylo vybudováno venkovní fitness, realizovány zahradnické úpravy a instalovány herní prvky se šplhací lanovou pyramidou. V roce 2012 byly staré tréninkové branky nahrazeny bezpečnými brankami z projektu Středočeského kraje.
V roce 2014 dostal dnes již sportovní areál důstojné zázemí. Autorem projektu je Ing. Jiří Dvořák. Zastupitelstvo Středočeského kraje rozhodlo o poskytnutí dotace ve výši 2 mil. Kč na rekonstrukci zázemí a nové oplocení víceúčelového hřiště.
Jedná se o modulovou stavbu, kterou měl realizovat vítěz výběrového řízení, zlínská firma PSK – ASM s. r. o. S touto firmou byla v průběhu měsíce května vypovězena smlouva, protože firma přes opakované výzvy k plnění ze smlouvy s obcí vůbec nekomunikovala. Ještě koncem měsíce se podařilo podepsat smlouvu s českobudějovickou firmou PRADAST, která ve výběrovém řízení skončila na 2. místě. Nové zázemí bylo obci předáno 12. září 2014.















